Maison de Santé Pluridisciplinaire "Renaissance" - Royan
Maison de Santé Pluridisciplinaire "Renaissance"
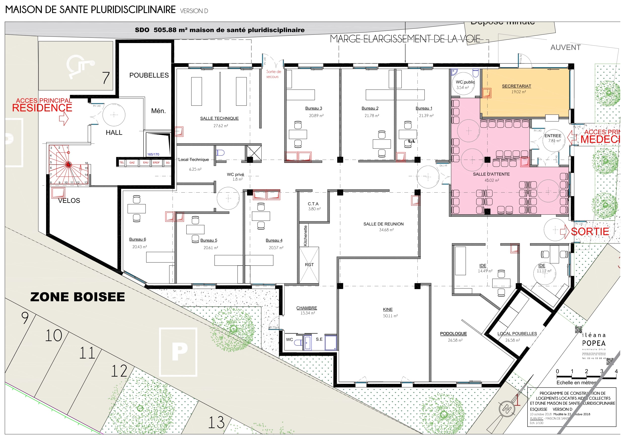
Une des réponses de la municipalité à la problématique de démographie médicale, repose sur la constitution de cette future MSP qui comprendra 8 cabinets pour un exercice libéral et deux infirmières ASALÉE (Action de santé libérale en équipe) pour des parcours de soins mutualisés et simplifiés pour les patients.
Après avoir été bloquée pendant plus d’un an suite au recours déposé par un riverain, la construction peut reprendre pour une livraison très attendue. Une réalisation souhaitée par la population et par l’équipe de professionnels de santé dédiée.

Contrat Local de Santé
La Ville de ROYAN a participé à l’élaboration d’un Contrat Local de Santé (CLS) conduit par la Communauté d’Agglomération Royan Atlantique (CARA).
Le CLS est un outil de coordination et de planification. La phase de diagnostic a pour objectif de repérer les enjeux de santé locaux, puis d’y répondre grâce à un plan d’actions co-construit, dans le but de réduire les inégalités territoriales sanitaires.
Il propose un pilotage unifié et décloisonné sur différents champs :
- La prévention
- Les soins ambulatoires et hospitaliers (favoriser maintien et développement de structures et services de soins de qualité et adaptés)
- L’accompagnement médico-social (et au besoin la veille et la sécurité sanitaire).
Les travaux en images









